Rif: IMMO-117001919
RAVENNA
RAVENNA - zona Porto Corsini - Marina Romea
MARINA ROMEA (RA), In zona centrale vicino ai principali esercizi commerciali, a pochi passi dal mare, proponiamo in vendita signorile villa bifamiliare ristrutturata, di particolare pregio architettonico.
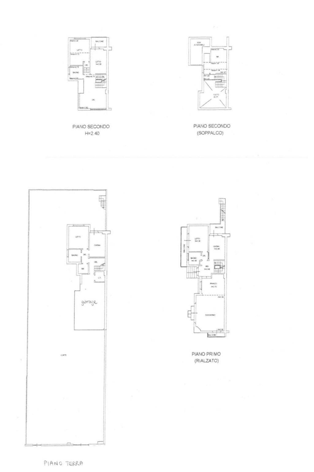
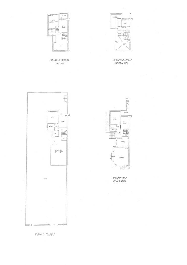
L'immobile si sviluppa su più livelli ed è libero su tre lati, composto da: ampio giardino privato di circa 385 mq ideale per godere momenti di relax e convivialità all'aperto.
Al piano terra: ampio garage con doppio accesso, disimpegno, cucina, camera da letto matrimoniale, bagno, riscaldamento autonomo.
Al piano primo rialzato: ingresso, spazioso soggiorno - pranzo con camino, cucina con balcone, camera da letto matrimoniale e bagno.
Al piano secondo: due camere da letto matrimoniali di cui una con balcone, ampio studio, bagno oltre a mansarda in soppalco con affaccio sullo studio sottostante.
Infissi in PVC installati nel 2024, riscaldamento autonomo.
Perfetta come casa residenziale o casa per vacanze e per chi cerca comfort con ampi spazi.
Informazioni in agenzia previo appuntamento.
L'immobile si sviluppa su più livelli ed è libero su tre lati, composto da: ampio giardino privato di circa 385 mq ideale per godere momenti di relax e convivialità all'aperto.
Al piano terra: ampio garage con doppio accesso, disimpegno, cucina, camera da letto matrimoniale, bagno, riscaldamento autonomo.
Al piano primo rialzato: ingresso, spazioso soggiorno - pranzo con camino, cucina con balcone, camera da letto matrimoniale e bagno.
Al piano secondo: due camere da letto matrimoniali di cui una con balcone, ampio studio, bagno oltre a mansarda in soppalco con affaccio sullo studio sottostante.
Infissi in PVC installati nel 2024, riscaldamento autonomo.
Perfetta come casa residenziale o casa per vacanze e per chi cerca comfort con ampi spazi.
Informazioni in agenzia previo appuntamento.
Consistenze
| Descrizione | Superficie | Sup. comm. |
|---|---|---|
| Principali | ||
| Giardino/Resede | 385 Mq | 38 Mqc |
| Immobile - piano terra | 38 Mq | 38 Mqc |
| Immobile - 1° piano | 80 Mq | 80 Mqc |
| Immobile - 2° piano | 56 Mq | 56 Mqc |
| Balcone - 2° piano | 4 Mq | 2 Mqc |
| Altro - 1° piano | 5 Mq | 2 Mqc |
| Mansarda - 3° piano | 24 Mq | 8 Mqc |
| Box/Garage - piano terra | 43 Mq | 22 Mqc |
| Totale | 246 Mqc | |

